1/4

Hörsaalgebäude Osnabrück

Hörsaalgebäude Osnabrück

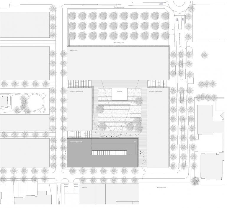
Der Neubau für das Hörsaalgebäude befindet sich an zentraler Stelle des Hochschulcampus, zwischen Campusplatz und Forum. Der Masterplan impliziert die Positionierung des Hörsaalgebäudes als Gegenüber der Bibliothek mit Ausrichtung zum Forum.Die Strenge und Klarheit dieses städtebaulichen Konzepts wird hier in Architektur gegossen.

Standort

Osnabrück

Auftraggeber

Stiftung Fachhochschule Osnabrück

Preis

1. Preis

Fertigstellung (Jahr)

2010

Status

Wettbewerb